
文章插图
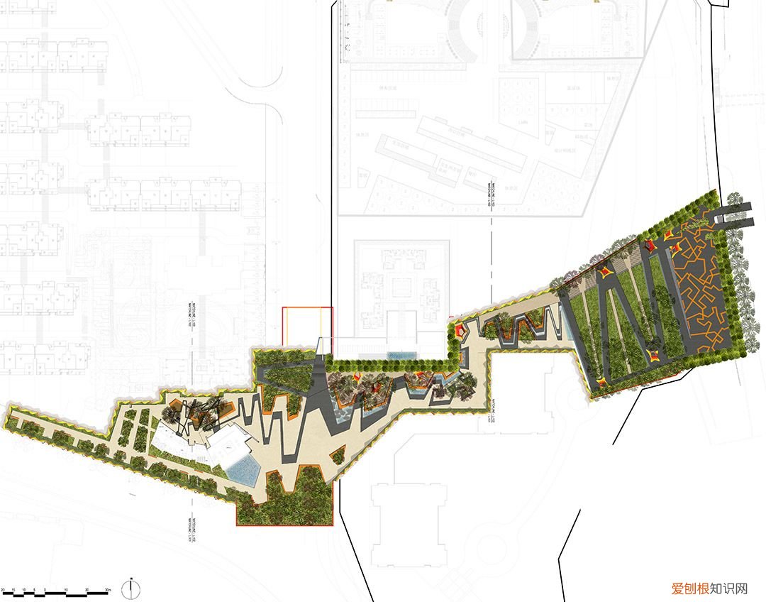
“Z”形小道解决了高差明显的地形为游人带来的不便 。它已成为一种地脉语言,人们好似行走在陡峭山峦上的蜿蜒小道 。每一个拐角处都设有供游人休憩、赏景的平台 。“Z”形小道两旁是用大块黑色深纹理混凝土制成的护墙,游人仰望山丘,会看到一道长长的岩石轮廓 。护墙围成的沟谷或沟壑形成了流经公园的溪流 。
从广场一直流向销售中心的水元素是凤鸣山公园的重要部分 。设计师采用了水渠、水池、喷泉等不同的水景效果,不仅起到降温的作用,潺潺的流水声和水景营造出的氛围更是为游人展示了一道迷人的风景 。
The zigzag path ensures the extreme level change is accessible for all, the path also becomes a geological pattern language, as if one is a walking on trails winding up a steep mountain. At each turn, a platform provides a place to sit and enjoy the view or take respite from the hill. The zigzag path is lined with balustrade walls constructed from la网rge pieces of deeply textured dark concrete to create a rocky silhouette looking up the hill. The valleys or crevices that are created by the walls be网come sources for streams which run through the project.
The presence of water is an important part of Fengming Mountain Park and is expressed as a 网‘flow’ of water from the arrival plaza to the sales centre, using a variety of different water effects, such as: channels, pools and jets to assist with cooling, provide sounds and atmosphere to what is a captivating landscape.

文章插图

文章插图

文章插图

文章插图
【重庆沙坪坝凤鸣山在哪怎么样 重庆凤鸣山】

文章插图

文章插图

文章插图

文章插图

文章插图

文章插图
从入口广场的雕塑,“Z”形小道,再到蜿蜒的水景、拐角平台最终到达销售中心,整个公园就是一个连续的快乐旅程 。凤鸣山公园已成为洋溢着快乐、活力和备受喜爱的重庆城市景观 。
This entire park is a sequence, a triumphant journey, from the patterned markings in the arrival plaza; down the zig zag path; into meandering water features; through the plazas and then on to the final destination at the Sales Centre.
Fengming Mountain Park has become a vibrant, joyful and well loved part of the Chongqing cityscape.

文章插图

文章插图
推荐阅读
- 分享成功治疗鼻炎的偏方 治疗鼻炎小偏方
- 世界上最大的5种淡水鱼、 最大的淡水鱼呢
- 女子嫌自己法令纹太深 法令纹不对称
- 八种天然美白食物 可以美白的食物
- 关于小龙虾养殖你应该知道的 龙虾养殖业
- 这5种食物,是“维生素C之王” 哪种食物维生素c含量最高
- 51talk英语一年学费多少钱 51talk怎么收费
- 快手怎么没有隐藏粉丝功能了 快手怎么隐藏粉丝数量和关注的人
- 肋骨骨折怎么办? 肋骨骨折后遗症
