1.PVC面料是立川门的一大特点 , 属于塑料材质 , 具有抗菌、防污、防火、无甲醛优点 , 防潮易清洗 , 适合用作厨卫门 。用在客餐厅、客厅与书房、客厅与阳台、二楼隔断等位置 , 也是一大首选 , 颜值真的不能再高 , 又很实用 。
2.作为折叠门的一份子 , 立川门折叠起来的厚度统一为13cm , 宽度为定制宽度(基本上是门洞宽度)的20%-25% , 1米以下均为20cm , 很省位置 。
不管有没有门套 , 立川门都可安装使用 。如果想要搭配门套 , 要自己另外购买 , 比较麻烦 。建议搭配浅色系门套 , 会更整体 。
>>>>立川门优点?
立川门比较大的问题就是贵 , 起步价600元/平方 , 而且不足2平方按2平方算 , 价钱只包吊柜、五金 。如果想要搭配门套、加锁头 , 就要价钱另计 。林林总总下来 , 做一个门起码就要2000元啦 。当然 , 如果对品质要有求 , 预算OK 的话 , 立川门确实是个不错的选择 。
03
窄框玻璃门窗

文章插图
窄框玻璃 , 隔而不断 , 玻璃让室内光线通透 , 显得空间更大更明亮 。
>>>>立川门优点?
01型材极窄 , 视野极宽
凭借完善科学的设计理念、设计风格和成熟的生产工艺 , 满足了材料的厚实与简约的美感 , 又收获多一份阳光少一些金属的冰冷感 。
02纯色经典 , 永不过时
黑灰是现代简约风格是当下很受人们欢迎的一种设计搭配 , 或黑或灰的色调 , 黑灰颜纯色窄边推拉门让整个客厅显得既沉稳而又不失时尚 。
03拉手与开关天然合一
开关五金采用德国进口五金配件 , 耐磨耐腐蚀 。轻轻拨下按钮 , 即可闭锁或打开开关 。拉手与开关的融合设计 , 整个门窗尽显简约而高雅 。
04安全、静音技术设计
窄边推拉门玻璃采用汽车级钢化玻璃 , 可抗3000公斤冲击力 , 安全 , 热熔胶封口 , 注入干燥惰性气体 , 保证中空玻璃干燥清爽 , 有效防止发霉起雾 , 隔音处理极好 , 即使室外有很大噪音 , 在室内也照样享受宁静的气氛 。
05平稳无噪音
在厨房或客厅要隔出一个房间时 , 可考虑安装窄框玻璃门:保持空间整体性 , 又不影响空间利用 , 更重要的是 , 原本60分好看的家能变成90分好看 , 剩下10分留给其他装软来补齐 。

文章插图
【立川俊之】△顶天立地的窄框玻璃门显高显瘦
>>>>适用场景:
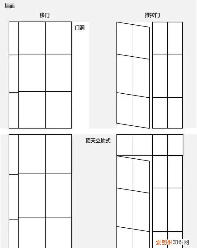
备受追捧的窄框玻璃门 , 较多人选择黑色边框 。边框材质一般使用铝镁合金 , 玻璃的话 , 有单层、双层、普通的、钢化的、透明的、毛玻璃等 , 可根据实际情况选择 。如想安装在卫生间 , 毛玻璃可能会好点(如果喜欢透明卫生间的请忽略这句话) 。可做移门或推拉门窗 , 高度也可以做到顶天立地 , 或只做门洞大小 。
如果选择移门 , 记得提前考虑好是做明轨还是暗轨 , 还要留意滑轮、阻尼、缓冲这些配件 。
