ps怎么在别人的软装上贴自己的照片解决方法如下:
1.首先打开PS软件,点击菜单栏“文件”---“新建”,设置好宽度高度,创建空白文件 。
2.拖入一张素材图片 。
3.再拖入一张素材图片,将它移到相对应的位置 。
4.按住Alt键不放,用鼠标移到两个图层中间位置出现剪贴蒙版标志时,鼠标点击左键即可 。
5.这样就成功将一张图片贴入另一张图片里面 。
Adobe Photoshop,简称“PS”,是由Adobe Systems开发和发行的图像处理软件 。Photoshop主要处理以像素所构成的数字图像 。使用其众多的编修与绘图工具,可以有效地进行图片编辑工作 。ps有很多功能,在图像、图形、文字、视频、出版等各方面都有涉及 。
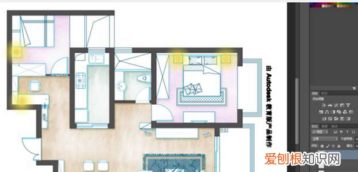
ps如何制作包装盒平面图方法:
1、将图纸导出为PDF格式的文件:打开CAD文件,隐藏不必要显示的图层,ctrl+p调出打印设置对话框,选择打印机名称为“DWGtoPDF”,设置并框选打印范围,单击“确定”,选择文件名和保存路径 。

文章插图

文章插图

文章插图
2、将保存的PDF文件用Photoshop打开,剪裁到“出血框”,宽度和高度“像素”,单击“确定”,导入打开之后如下图 。

文章插图

文章插图
3、新建图层,填充白色,把图层拖到最底层,将图层1命名“线条” 。选择“线条”图层,w,选中图中的墙体边框线,将前景色设置为深灰色,新建图层3,alt+delete将前景色填充到墙体边框中 。ctrl+d取消选择 。

文章插图

文章插图
4、将图层3命名“墙体填充”,用PS打开地毯贴图,将贴图拖到文件中,产生新的图层3,将其命名“地毯” 。调整地毯的大小并拖到相应区域,关闭“地毯”,选择“线条”,w,选中地毯覆盖区域,显示并选择“地毯”,ctrl+shift+I反选,delete,删掉了不需要填充的地方 。

文章插图

文章插图
5、填充地面:新建图层“公共空间”,设置前景色,选择“线条”,w,选择公共区域,选择“公共空间”,alt+delete填充前景色,ctrl+d取消选择 。设置图层样式:勾选“内阴影”并设置角度、距离、大小等,“确定” 。单击减淡工具,选择画笔,涂抹窗户、门等地产生层次感 。也可以同时搭配加深工具,对墙边、角落等地进行涂抹,形成阴影效果 。

文章插图

文章插图
6、同理,填充其它区域,如房间、厨房、卫生间,注意笔刷的运用,产生水墨效果的笔刷最好用 。

文章插图
7、新建图层“灯”,单击椭圆选框工具,按住shift,画出正圆选框,设置灯光前景色,用渐变工具拉出填充范围,ctrl+d取消选择,ctrl+t调整大小并移动到需要灯光的区域 。

文章插图
8、复制几个“灯”图层,并移动到相应的区域 。
推荐阅读
- 电脑怎么玩王者荣耀,电脑怎么安装王者荣耀
- 怎么检验苹果手机无拆无修,怎么看苹果手机有没有被拆过
- 如何提升本地歌曲的音质,电脑加声卡听音乐对音质有提高吗
- 吸铁石对人身体有害吗,吸铁石对狗狗身体有害
- cdr怎么做透视,cdr咋得才可以做立体字
- 电脑没有word文档怎么办
- 高中英语词性分类12种以及用法
- oppo如何查看剩余运行内存
- cdr要怎么翻转,cdr怎样旋转图片
