济南学区房划分(市中最新学区划分!看看你家在哪个学区)
市中区2020年的学校划片确定了!快来看看你家在哪个学区吧!
同时,市中区2020年小学招生政策网其中提到,期房业主因还未实际居住,其子女不属于新建小区配建学校招生范畴网 。因此,未能在当年招生报名前实际入住的期房业主子女,应按照当地招生规定解决子女入学问题 。待实际入住后,可向配套学校提出转学申请 。
同时,根据济南市“整体对口入学”的初中学校免试招生办法,不在新建小区内配套小学就读,申请进入新建小区配套初中就读的,均需按照转学流程进行申请 。
下面,就来看市中区2020年学区划分情况 。
(一)市中区小学对口初中一览表

文章插图

文章插图
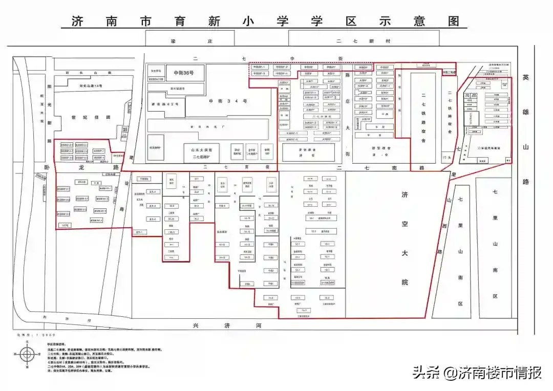
2020年济网南市市中区
小学学区图

文章插图

文章插图

文章插图

文章插图

文章插图

文章插图

文章插图

文章插图

文章插图

文章插图

文章插图

文章插图

文章插图

文章插图

文章插图

文章插图

文章插图

文章插图

文章插图

文章插图

文章插图

文章插图

文章插图

文章插图

文章插图

文章插图

文章插图
推荐阅读
- 45s是什么意思
- 萤火虫有几只脚
- 蝉的介绍,中学七年级上册第三课蝉这篇文章的写作背景是什么
- 双氧奶浓度高低有什么区别,双氧奶6度9度12度有什么区别
- 磷虾为什么不能吃,南极虾为什么不能吃
- 甲鱼冬天在水里会死吗,甲鱼冬眠在水里还是在岸上
- 手把手教你自制一个风筝 如何制作风筝
- 腐烂变质的山药什么样,铁棍山药为什么是黄色的
- 无糖饼干有哪些品牌,无糖脱脂鲜牛奶有哪些
