标准羽毛球场地尺寸
羽毛球场为一长方形场地,长度为13.40米,双打场地宽为6.10米,单打场地宽为5.18米 。球场上各条线宽均为4厘米,丈量时要从线的外沿算起 。球场界限最好用白色、黄色或其它易于识别的颜色画出 。

文章插图
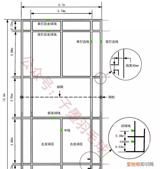
标准羽毛球场地划线尺寸图?首先,我们来看下场地的平面图 。如下:

文章插图
①、从上面的图中,我们可以看到有这样几个名字:
前发球线:靠近球网并和球网平行的两根线;所有的发球都必须在前发球线内 。
单打后发球线:也就是场地的两端线;端线不仅是单打后发球线,也是单双打的最底线 。
单打边线:单打时两侧最大边界(以线的外边缘) 。
双打后发球线:端线前面一根线 。
双打边线:双打时两侧最大边界(以线的外边缘) 。
中线:连接前发球线与端线中点,将场地分成两块 。
小知识:前发球线、边线、后发球线及中线构成了一块发球区,分为左发球区和右发球区 。经常看正规比赛的朋友都能发现,双打的时候,接发球的队员往往站的比较靠前,那是因为接发球的底线要比单打底线靠前了0.72米 。
试球线:用来测羽毛球速度的 。
小知识:具体测法是:在对面端线外,用低手全力击球 。球落到两个短线之间为标准用球 。比赛开绐前裁判长选择三种球(快、中、慢)来测试,从中选择一种 。
②、除了这几个名字之外,还有几组数据:
羽毛球场地上所有线宽均为40毫米,
整个羽毛球场地的最大尺寸为:长13.4米,宽6.1米,而这个尺寸也就是双打的最大边界 。
单打的边界尺寸为:长13.4米,宽5.18米,也就是内侧第二根边线外边缘 。
双打发球区域的长度为3.88米,宽度为2.99米,但是接发球的区域长度为:3.96米,宽度为3.07米 。因为发球的时候脚不允许踩线,所以按照所有线的内边缘为准,但是接发球时却以线的外侧边缘为准 。
同理,单打的发球区域长度为:4.64米,宽度为:2.53米,而接发球区域尺寸为:4.72米,宽度为:3.61米 。
再看一下球场的立体图示,如下图 。

文章插图
此图中,我们需要注意的是球场上空的高度应在9米以上,国际高度是12米,在这个高度内保持无横梁,无障碍物 。
【标准羽毛球场地尺寸,标准羽毛球场地划线尺寸图?】球场四周应该保持最少2米内无障碍物,如果有相邻的球场,距离也应该保持在最少2米的间距 。
小知识:羽毛球网长6.10米、宽76厘米,为优质深色的天然或人造纤维制成,网孔大小在15-20毫米之间 。无论是单打还是双打,两根网柱都应分别立在双打场地边线的中点上 。网柱高1.55米,所以,球网两端高度为1.55米,在正式比赛中,球网中部上沿离地面必须为1.524米高 。
推荐阅读
- 全面分析创业伙伴 寻创业合作伙伴文案
- 滑动验证码有什么用,滑动验证破解的方法!
- 公元的划分,公元纪年是怎么确定的,以什么为标准划分公元前和公元?
- 生日发朋友圈怎样写好,我生日发朋友圈怎样写好?
- 烤盘的焦黑怎么清洗
- 做什么小买卖能赚钱,十大冷门暴利小生意推荐
- mg是什么单位多少克,计量单位:mg是什么单位?
- 淘宝客推广平台有哪些,十大淘客软件排名
- 结婚红包祝福语,班长结婚送红包写点什么祝福语?
