
文章插图

文章插图
公共区域选用无缝树脂地板作为要素使房间呈现连续性流动 。木地板在地面堆叠成“岛”,区分出休息室与餐厅的不同空间边界 。这个概念也被沿用到顶楼水疗区 。不仅在水疗和公共区域,特别是客房和套房的内部空间每个角落都受到设计师的热切关注 。套房中飘窗是重中之重,它为休闲区提供了壁炉、独立浴缸或沙发景 。空间由层层嵌套的壳体隔开,墙体、地板和天花板使用同样材料装饰 。木材让空间显得更为均质、华贵且温暖,极具吸引力 。

文章插图
无尽之旅
毫无疑问从远处就能够看到建筑的亮点所在:水疗区及其奢华的悬臂式泳池 。在此宽敞的休闲区分别位于飘窗顶部或嵌入屋顶的一些私密露台中,人们可以在此休息呼吸新鲜空气 。弧形圆筒作为一大亮点在建筑南面嵌入人字形屋顶,在北面则伸出成为倒置拱作为附属泳池 。覆盖泳池的壳体采用与方形凸窗类似的青铜色铝板覆盖 。它成为深褐色人字形屋顶上的休止符,谱写了一首迷人的回旋曲 。在内部数个楼梯导向圆筒中心 。滑门自动开启,一部分随着弧形壳体隐入水中,另一部在无边泳池中向地平线方向延伸而去 。

文章插图

文章插图
泳池上近六米长的圆杆塑造的弧线、透明度与柔和倒影,创造出类似雕塑的形态漫入建筑中 。人们从后方进入时,泳池覆盖着青铜色的圆形外壳,它逐渐消解为半圆形的杆结构,最后一直到天空下方;金属与水在此相互作用转化成为无限的自由 。这种柔和的淡出方式消解了圆柱形外壳并让人们在眺望远景时产生漂浮感 。

文章插图

文章插图
这种几乎如雕塑般的杆结构实际上是对反复出现的拱及菱形图案的转译,通过近距离观察可以看见弯曲的圆杆在交叉时形成菱形图案 。这或许是一段在进门前就可以预料的建筑漫游之旅的顶峰 。

文章插图

文章插图

文章插图
总平面图

文章插图
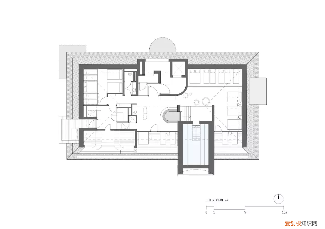
平面图

文章插图
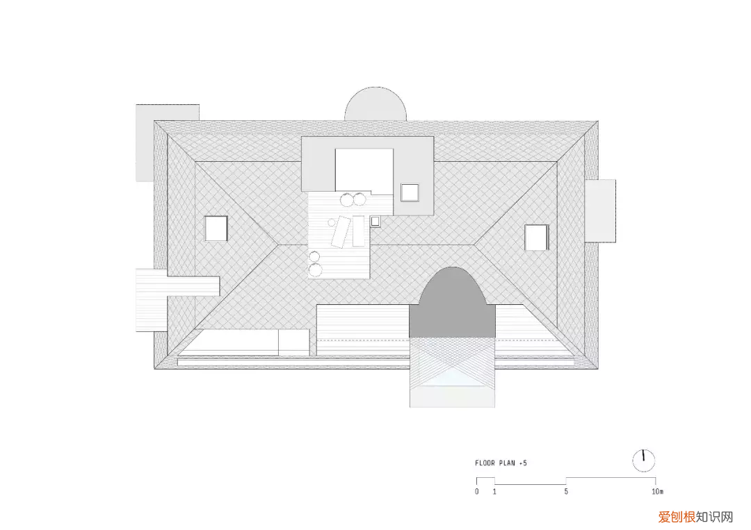
平面图

文章插图
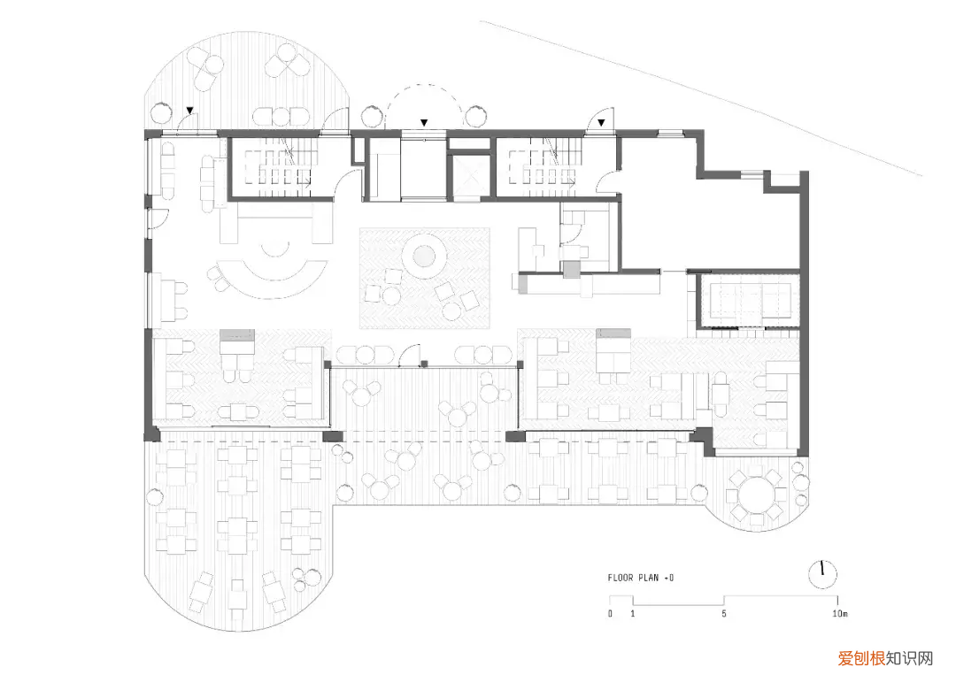
平面图

文章插图
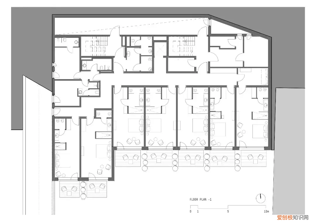
平面图

文章插图
平面图

文章插图
剖面图

文章插图
立面图

文章插图
立面图
推荐阅读
- 稀土是什么? 稀土的用途
- 什么时候用光圈优先? 光圈优先
- 菠萝最好吃的做法 菠萝怎么吃最好
- 南京气候适合北方人吗 南京气候|
- 家庭版炸油条的做法 油条的做法和配方
- 世界上最大的黄鳝有多大? 世界上最大的黄鳝
- 6个改善鼻子出油的小妙招 鼻子出油
- 金银花的功效与作用? 金银花茶的作用
- 什么食物能快速解酒? 解酒吃什么
