
文章插图
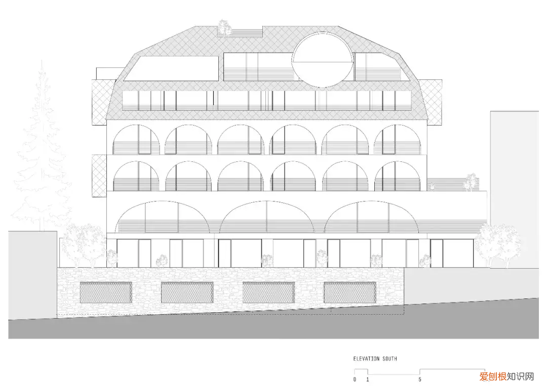
立面图
建筑师: noa* network of architecture
地址: 39054 Soprabolzano BZ, 意大利
设计团队: Lukas Rungger, Christian R网ottensteiner, Barbara Runggatscher, Lea Mittelberger
建筑面积: 2000.0 m2
项目年份: 2018
【高端旅馆设计:意大利拱门旅馆 旅馆建筑设计】
推荐阅读
- 稀土是什么? 稀土的用途
- 什么时候用光圈优先? 光圈优先
- 菠萝最好吃的做法 菠萝怎么吃最好
- 南京气候适合北方人吗 南京气候|
- 家庭版炸油条的做法 油条的做法和配方
- 世界上最大的黄鳝有多大? 世界上最大的黄鳝
- 6个改善鼻子出油的小妙招 鼻子出油
- 金银花的功效与作用? 金银花茶的作用
- 什么食物能快速解酒? 解酒吃什么
