1.问题描述:
1) 排烟系统各排烟口风速分配不均 , 未达到设计要求;
2) 排烟系统排烟口的风速、风量不能满足设计及规范要求 , 偏差值远大于规范规定的10%范围;
3) 在排烟系统测试中 , 测得系统总风量符合设计要求 , 而末端排烟口达不到设计排烟量 。
2.规范要求:
《建筑防烟排烟技术标准》(GB 51251-2017)有关规定:
4.4.12 排烟口的设置应按本标准第4.6.3条经计算确定 , 且防烟分区内任一点与最近的排烟口之间的水平距离不应大于30m 。除本标准第4.4.13条规定的情况以外 , 排烟口的设置尚应符合下列规定:
7 排烟口的风速不宜大于10m/s 。
4.6.1 排烟系统的设计风量不应小于该系统计算风量的1.2倍 。
6.3.3 风管应按系统类别进行强度和严密性检验 , 其强度和严密性应符合设计要求或下列规定:
5 排烟风管应按中压系统风管的规定 。
6.3.5 风管 (道) 系统安装完毕后 , 应按系统类别进行严密性检验 , 检验应以主、干管道为主闹风4小转险查方法: 系统的严密性检验测试按现行国家标准《通风与空调工程施工质量验收规范》GB50243的有关规定执行:
7.2.7 机械排烟系统风速和风量的调试方法及要求应符合下列规定:
1 应根据设计模式 , 开启排烟风机和相应的排烟阀或排烟口 , 调试排烟系统使排烟阀或排烟口处的风速值及排烟量值达到设计要求;
2 开启排烟系统的同时 , 还应开启补风机和相应的补风口 , 调试补风系统使补风口处的风速值及补风量值达到设计要求;
3 应测试每个风口风速 , 核算每个风口的风量及其防烟分区总风量 。
8.2.6 机械排烟系统的性能验收方法及要求应符合下列规定:
【排烟系统风机风量大约是多少 排烟系统的最大风量由什么确定】1 开启任一防烟分区的全部排烟口 , 风机启动后测试排烟口处的风速 , 风速、风量应符合设计要求且偏差不大于设计值的10% 。
应对措施:
1) 对于连接多个排烟口的排烟风管 , 设计文件应明确各排烟口的排烟量及调节措施 , 以便后期检测排烟效果并验证排烟量数值:
2) 系统调试时施工单位应逐个调校排烟口风速存在明显异常的 , 需及时找出原因并消除缺陷 , 使系统各项参数达到设计要求,确保排烟系统可靠运行 。【图示】
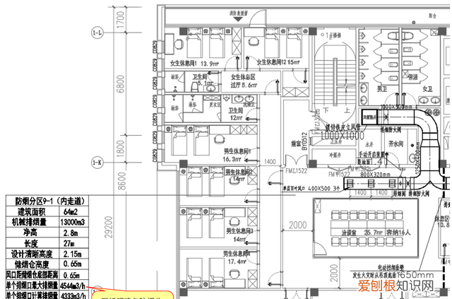
3.图示说明:

文章插图
推荐阅读
- 2022年最吃香的大学专业 项目管理专业大学排名
- 韩国爆发疫情的电影 韩国疫情排名
- 怎么退出电脑微信,如何把微信下电脑上
- 苹果录音怎么传到微信上,可以如何将苹果手机录音发到微信上
- 汽油怎么来的 人造汽油优缺点
- 快手里的作品该如何隐藏,《快手》隐私作品设置方法是什么
- 魔兽世界t0职业 魔兽世界TOC职业排名
- 高速风噪最小的车型 高速噪音小汽车排名
- 美图秀秀抠图在哪里,手机美图秀秀怎么扣出圆形图
