什么是台阶轴【什么是台阶轴,什么是高精度阶梯轴】
台阶轴是玩具五金配件的一种台阶轴,可生产几十吨以内轴类锻件,表面模具成形,确保锻件表面光滑,外形美观 。
1、 预紧力:绝大多数螺纹联接在装配时都必须拧紧,使联接在承受工件载荷之前预先受到的力 。
2、 预紧力目的:增强联接的可靠性和紧密性,防止受载后被连体出现缝隙或发生相对滑移 。

文章插图
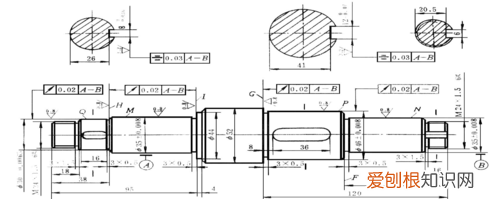
什么是高精度阶梯轴高精度阶梯轴(shaft)是指穿在轴承中间或车轮中间或齿轮中间的圆柱形物件,但也有少部分是方型的 。轴是支承转动零件并与之一起回转以传递运动、扭矩或弯矩的机械零件 。一般为金属圆杆状,各段可以有不同的直径 。机器中作回转运动的零件就装在轴上 。
什么是阶梯圆轴阶梯圆轴(shaft)指的是穿在轴承中间或车轮中间或齿轮中间的圆柱形物件,但也有少部分是方型的 。轴是支承转动零件并与之一起回转以传递运动、扭矩或弯矩的机械零件 。一般为金属圆杆状,各段可以有不同的直径 。机器中作回转运动的零件就装在轴上 。
减速器各级传动轴为什么要设计成阶梯轴不设计成光轴减速器各级传动轴设计成阶梯轴不设计成光轴是因为方便精确固定齿轮位置 。与光轴相比,阶梯轴的主要优点是便于轴上零件装拆与固定 。光轴通常由冷拉圆钢制成,可以减少加工轴外圆的工时,有时用于微型电机 。
阶梯轴可以方便安全地安装许多不同的零件,因此大多数减速器轴都采用这种轴 。
轴为什么做成阶梯形状阶梯轴 优点
1. 预紧力:绝大多数螺纹联接在装配时都必须拧紧,使联接在承受工件载荷之前预先受到的力.
2. 预紧力目的:增强联接的可靠性和紧密性,防止受载后被连体出现缝隙或发生相对滑移.
3. 螺栓组的结构设计(1)尽量采用3,4,6,8,12螺栓数目.(2)承受弯矩或扭矩时,螺栓向外分布.(3)如果受轴向载荷,普通螺栓装卸荷销.(4)留扳手空间(5)在铸,锻件等的粗糙表面上安装螺栓时,应制成凸台或沉头座.(6)同一组螺栓应尽量选择相同材料和规格.
4. 键联接类型:平键联接,半圆键联接,楔键联接,切向键联接. 功能:实现轴与轮毂间周向固定以传递转矩.
5. 花键分类(矩形花键)和(渐开线花键).
6. 花键和平键比较:优点:定心精度高,承载能力大,导向性好.缺点:成本高,需要专门设备加工.
7. 销的功用:零件的定位,联接和安全保护作用. 定位销:固定零件间的相对位置.联接销:用于联接.安全销:作为安全装置中的过载剪断元件.
8. 带传动特点:传动平稳,能实现过载保护,结构简单,中心距较大,效率低,传动比不准,寿命短,不适合恶劣环境. 带传动靠摩擦力工作. 分类:平带,V带,多楔带,同步带传动.
9. 传动中为什么上松下紧?因为在带与带轮接触面产生摩擦力,主轮上带的摩擦力与主轮的圆周速度方向相同而从动轮上带的摩擦力方向与带传动方向相反.
10. 带传动的失效形式:打滑和疲劳破坏. 设计准则:在保证到传动不打滑的前提下,具有一定的疲劳强度和寿命.
11. 齿轮传动:开式,半开式,闭式. 特点:效率高,结构紧凑,工作可靠寿命长,传动比稳定.
12. 齿轮的失效形式(一)轮齿折断:开式,闭式.齿断.齿根30度切线法.措施(1)增大齿根迁度圆角半径及消除加工刀痕.(2)增大轴及支承的刚性,使齿轮接触线上受载较均匀.(3)采用合适的热处理方法使齿芯材料具有足够的韧性.(4)采用喷丸,滚压等工艺对齿根表层进行强化处理.(二)齿面磨损:开式.现象:齿根减薄,齿顶变尖,渐开线形状改变.位置:根,顶严重.措施:表面镀硬质层,抗磨剂,欠饱和.(三)点蚀:闭式.现象:在变化着的接触应力作用下,由于疲劳产生麻点,点状损伤在工件条件未改善时,会逐渐扩大甚至连成片,表面薄层脱落.位置:靠近节线的齿根面上.原因:当齿轮在靠近节线处啮合时,由于相对滑动速度低,形成油膜的条件差,润滑不良,摩擦力较大,轮齿受力也最大.措施:提高表面光洁度,提高油粘度,提高表面硬度,使用材料配对.(四)胶合:闭式,大功率. 现象:弱表层沿齿面方向撕下薄层,热胶合.位置:齿根,齿顶严重. 措施:降低滑动率,小模数的齿,抗胶合剂.
13. 齿轮传动设计准则:闭式HB>=350(硬齿),以弯曲强度设计,校核接触强度. HB
14. 普通圆柱蜗杆传动参数1.m压力角& 2.分度圆直径d1 3.蜗杆头数Z1 4.导程r 5.传动比i齿数比u 6.蜗轮齿数Z2 7.蜗杆传动为标准中心距a
15. 蜗杆失效形式:点蚀,齿根折断,齿面胶合,过度磨损. 设计准则:开式,保证齿根弯曲疲劳强度.闭式,按接触强度设计,按弯曲疲劳强度校核,应做热平衡核算.
16. 闭式蜗杆传动功率损耗:啮合摩擦损耗,轴承摩擦损耗,溅油损耗.
17. 防止热平衡:1,加散热片以增大散热面积.2,在蜗杆轴端加装风扇以加速空气流通.
18. 滚动轴承优点:摩擦阻力小,功率消耗少,起动容易. 基本结构:内圈,外圈,滚动体,保持架. 分类:向心轴承,推力轴承,向心推力轴承. 失效形式:疲劳点蚀,塑性变形,过度磨损,装配不当,使内外圈和保持架受到破坏. 设计准则:1,中高速以限制点蚀,寿命计算,对重载塑变验算,特别是高速极限,转速预算.2,低速控制塑变为主.
1. 刚性联轴器:套筒类,夹壳式,凸缘式.
2. 轴的分类:1.按载荷不同:转轴,心轴,传动轴. 心轴:转动心轴,固定心轴,只承受弯矩,不承受扭矩. 传动轴:只承受扭矩,而不承受弯矩.2.按轴线形状:曲轴和直轴3.按外形形状:光轴,阶梯轴.
3. 轴的结构决定因素:1.轴在和机器的位置2.轴上放零件几个3.轴变性质方向,大小4.加工工艺性.
4. 预期计算寿命:按一组轴承中10%的轴承发生点蚀破坏,而90%的轴承不发生点蚀破坏前的转数或工作小时数作为轴承的寿命,叫基本额定寿命,设计机器时所要求的轴承的寿命就是预期计算寿命.
推荐阅读
- 长江黄河发源地在哪里 长江黄河源头在哪里
- 老君山在哪里 老君山在哪里哪个城市
- 水泥熟料是什么东西
- 寒衣每年都烧吗
- 华为平板感应不到手写笔
- 薄荷叶怎么提取汁
- 什刹海电视剧庄家老二是谁
- 不同品种的狗能不能配 不同品种的狗能配对吗
- 生面团酸了还能吃吗
